Nouvelle recherche
Cette annonce m'intéresse
REIMS - CHAMP DE MARS - 4 PIECES
Prix :
720,00 €
Loyer par mois, charges comprises,
dont 120,00 € de provisions sur charges
(Charges forfaitaires).
Honoraires charges locataire : 477,59 € dont 192,54 € TTC pour état des lieux.
Type de bien :
Appartement
Pièces :
4 pièces / 2 chambres
Surface :
64,18m²
Type de chauffage :
Gaz
Localité :
REIMS (51100) FRANCE
Référence :
LOCADUPCH
Description du bien
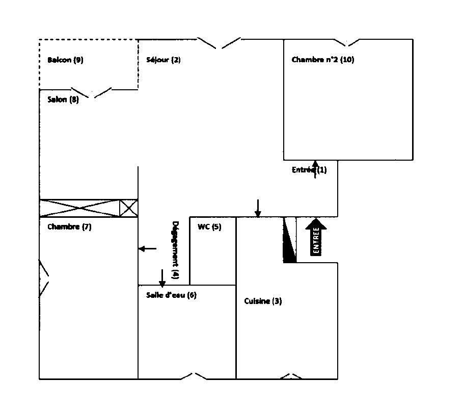
REIMS - Rue du Champ de Mars - 4 pièces - Appartement comprenant entrée, séjour, 2 chambres, cuisine, SDD, WC séparé, balcon. Chauffage collectif. DPE en cours de réactualisation. Libre 31/12/2025
Loyer CC : 720€
dont charges : 120€
Dépôt de garantie : 600€
Honoraires charge locataire : 477,59€
Dont 192.54€ pour état des lieux.
Les informations sur les risques auxquels ce bien est exposé sont disponibles sur le site Géorisques : www. georisques. gouv. fr
Caractéristiques
| Type de chauffage : |
Gaz |
| Date de disponibilité : |
01/01/2026 |
| Année de construction : |
1959 |
| Nombre de salles d'eau : |
1 |
| Nombre de WC : |
1 |
| Nombre de balcons : |
1 |
Informations complémentaires
| Charges annuelles : |
0,00 € |
| Frais visite/dossier/bail locataire : |
477,59 € |
| Frais état des lieux locataire : |
192,54 € |
| Dépot de garantie: |
600,00 € |
Mandat
| Nom du mandataire : |
REGNIER Margaux |
| Téléphone mandataire : |
03 26 87 71 70 |
| E-mail mandataire : |
Veuillez utiliser le formulaire de contact ci-dessous ... |
| Négociateur : |
REGNIER Margaux |